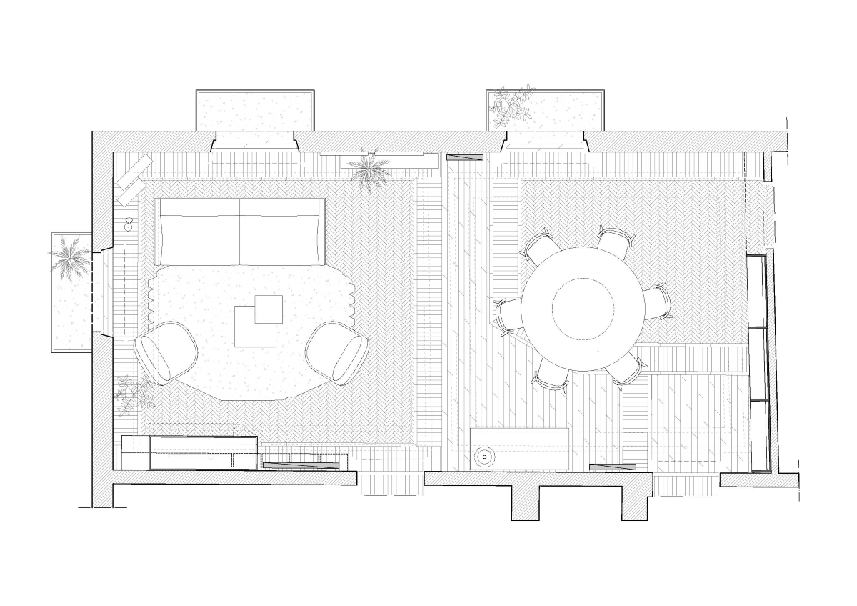
Una nuova sala colorata 50 mq | Milano - zona Ravizza | 2023 | Arredi, Interni, Residenze Vista sala Vista sala Vista sala Vista sala