La casa del tavolo lunghissimo

200 mq   |    Milano   |    2023 - in corso   |    Architettura, Interni, Residenze

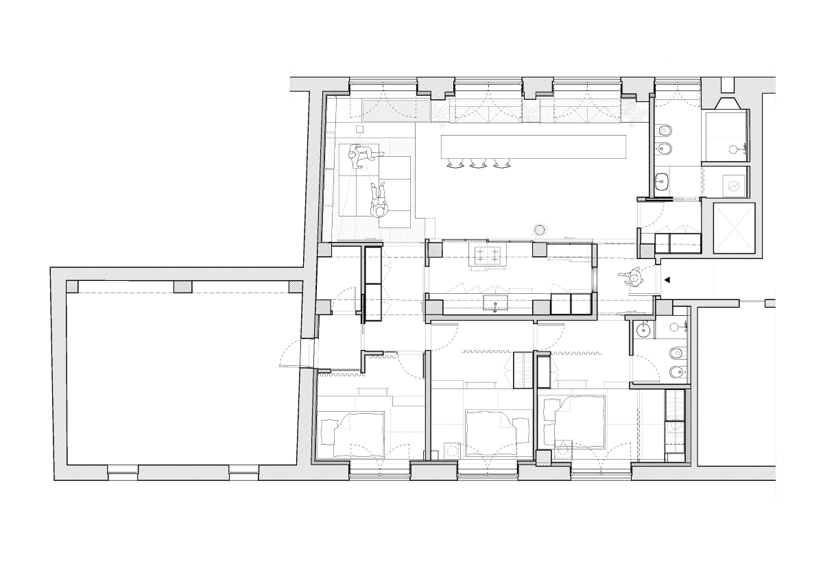
Progetto a Milano di conversione di laboratorio di un tappezziere  in residenza.

Piano semi-interrato con doppio affaccio, con amplie vetrate verso il cortile interno e la strada.

Una casa speciale, pensata per una coppia ed un figlio adolescente. Dei musicisti, una cantante e un creativo, per forza una casa non convenzionale, dove poter accogliere amici, spettatori per eventuali home concerts ed allievi. Vivere in una zona della città  piuttosto centrale. Pochi materiali, la luce e lo spazio come protagonisti.

Un nucleo centrale, che lascia traguardare lo sguardo sull’intera profondità dello spazio e che accoglie al suo interno la cucina.

Note

Collaboratori: arch. Marta Sciarra e Marcelo Suarez Salomè